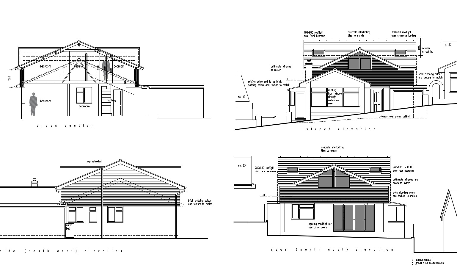
21 Cantercrow Hill, Newhaven

Project

Additional Storey

An additional storey granted under ‘prior approval’, providing clients with three bedrooms, en-suite, family bathroom.

Scheme designed by Draft 2 Design of Hailsham.